Opis
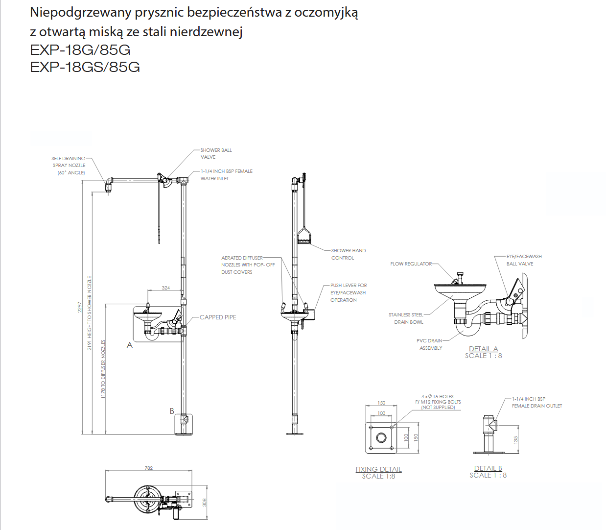
Montowany do podłogi prysznic bezpieczeństwa jest połączony z myjką do oczu/twarzy ze stali nierdzewnej z otwartą miską. Prysznic bezpieczeństwa z myjką do oczu i twarzy oferuje kompleksowe rozwiązanie dla zakładów przemysłowych i laboratoriów. Dysza prysznicowa o wysokim natężeniu przepływu zapewnia równomierny natrysk strumienia z natężeniem przepływu 76 litrów na minutę, co skutecznie usuwa zanieczyszczenia.
Aby zwiększyć odporność na korozję, myjka do oczu jest wykonana ze stali nierdzewnej i wyposażona w osłony chroniące dysze przed kurzem i zanieczyszczeniami. Jest to zgodne z wymogami dla pryszniców bezpieczeństwa z myjkami do oczu i twarzy, zarówno w normie EN15154, jak i ANSI Z358.1-2014.
- RURY I ARMATURA Stal nierdzewna (GS) lub ocynkowana stal miękka (G)
- ZAWÓR ROBOCZY Stal nierdzewna, pełny otwór, zawór kulowy o stałej pozycji otwartej
- DYSZA PRYSZNICA Formowany wtryskowo nylon 6
- OCZOMYJKA Stal nierdzewna
- DYFUZORY OCZOMYJKI Pierścień ustalający z chromowanego mosiądzu, siatka filtracyjna ze stali nierdzewnej, korpus z tworzywa sztucznego
- WYKOŃCZENIE STANDARDOWE Szczotkowane (GS) lub malowane proszkowo na zielono (G)
- WEJŚCIE WODY gwint wewnętrzny 32 mm (11/4˝) BSP
- CIŚNIENIE ROBOCZE 2–6 BAR (G) (29–87 PSI) (wyższe ciśnienia zasilania przy zamontowaniu opcjonalnego zaworu redukcyjnego ciśnienia)
- MINIMALNE PRĘDKOŚCI PRZEPŁYWU Prysznic: 76 litrów na minutę. Oczomyjka: 12 litrów na minutę (3 galony USA na minutę)
- TEMPERATURA OTOCZENIA: minimalna 5°C, maksymalna 35°C
- URUCHOMIENIE, Prysznic: Pociągnięcie za dźwignię, Oczomyjka: Płytka dociskowa
- WYMIARY (szer. × gł. × wys.) 306 mm × 773 mm × 2320 mm
- MASA 16 kg








